デュアルシリーズ 振り分けコンベア PDT-SBD(D)
特徴
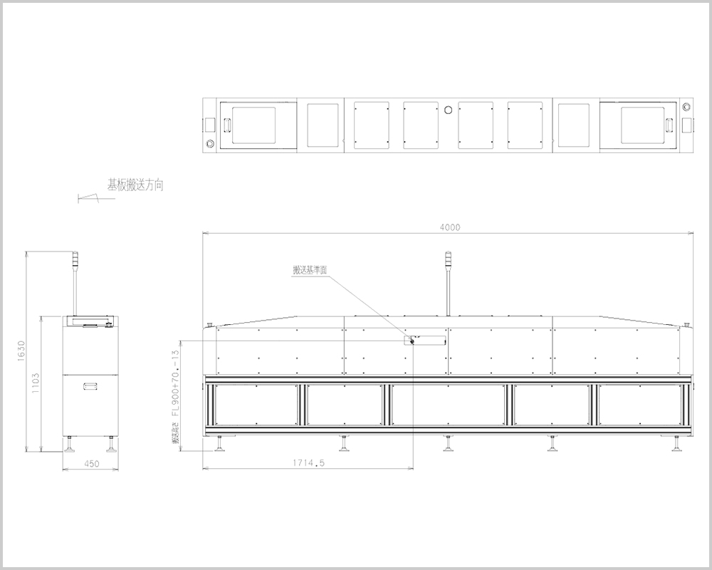
- デュアルレーン対応
基準レール・距離が異なる設備を繋げます。 - 停止位置任意設定
タッチパネルにて停止位置の任意設定 - コンベア幅 自動幅調標準対応
- 自動段替え対応可能
| 基板搬送方向 | 右→左(左→右) |
|---|---|
| 基板搬送基準 | 手前側(奥側) |
| 基板搬送高さ | 900+50-25(mm) |
| 対応基板寸法 | W50~250mm*L70~330mm |
| 基板厚み | 0.5~2.0mm |
| 出入口シャッター | 有り |
| 電源 | AC200V |
| エアー | 0.5MPa |
※XLサイズも対応可能
※仕様及び外観の一部を改良の為、予告なく変更することがありますのでご了承ください。
/PBT-SBD(D).jpg)
/PDT-SBD(D)_plan.jpg)